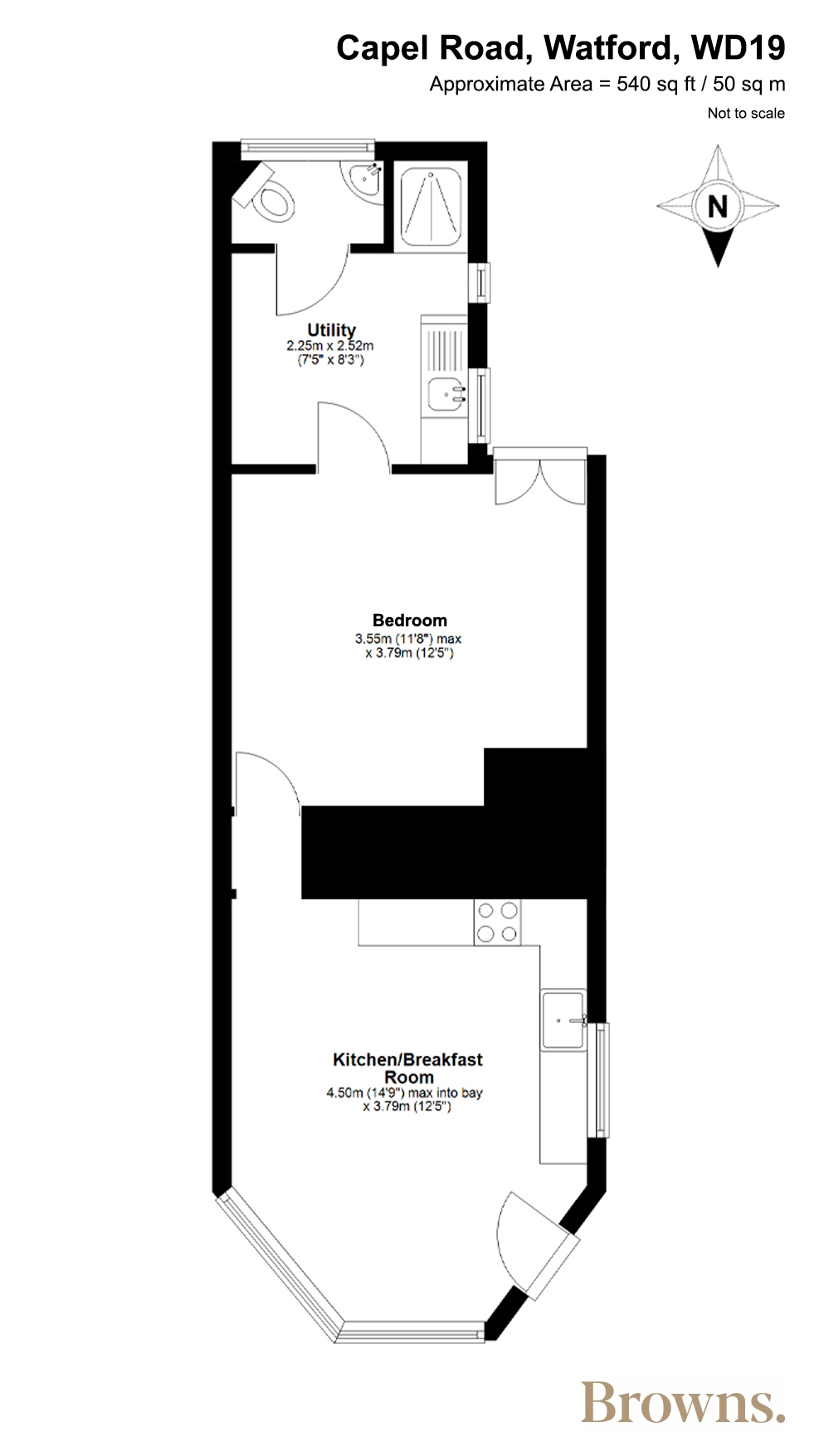
A rare opportunity to occupy a beautifully refurbished one-bedroom ground-floor apartment in the sought-after Oxhey Village, perfectly blending period character with contemporary style. Set on a street lined with charming Edwardian terraces, this home offers a prime location just moments from Bushey Station, with direct 17-minute trains to London Euston – the perfect mix of village tranquillity and city convenience.
Behind its classic bay-fronted façade, the apartment opens into a spacious hallway that leads into the bright and airy open-plan kitchen diner – newly fitted with sleek cabinetry, quality appliances, and a modern layout designed for both cooking and entertaining. The principal bedroom is a generous retreat where French doors flow seamlessly to the private garden, creating an ideal setting for alfresco dining or a peaceful morning coffee. Completing the interior is a contemporary bathroom, styled with crisp finishes for a fresh, timeless look.
Externally, the property benefits from off-street parking for one car – a rare and valuable addition in this central location.






