Ivy House, a Grade II listed residence dating from the late 1600s, was reimagined in 2021 to form six considered apartments, each shaped around the building’s historic character. The building benefits from a fully established Right to Manage structure, offering residents greater control over maintenance, service charge expenditure and long-term stewardship - a meaningful advantage that ensures decisions remain firmly in the hands of the owners. Original features, including generous ceiling heights, ornate cornicing and delicate ceiling roses, have been carefully preserved, while the introduction of refined panelling and a muted contemporary palette lends the interiors a distinctly modern sensibility. Set directly on Bushey High Street, the building sits among the area’s much-loved independents, including Vincenzo’s and The King Stag. Bushey Station lies less than a mile away, providing direct connections to London Euston in approximately 15 minutes.
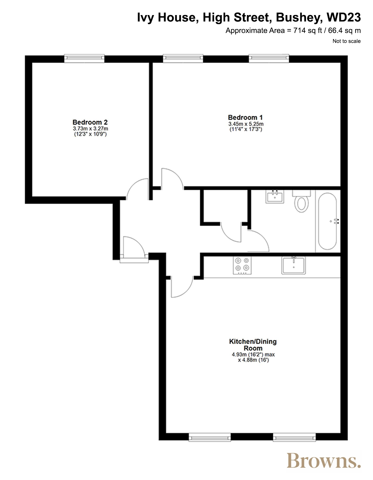
Located on the first floor and measuring an impressive 714 sq.ft, this two-bedroom apartment is, in our view, one of the area’s finest examples of modern apartment living. A wide entrance hall provides a generous welcome, designed to house coats, shoes and everyday essentials while creating an effortless flow between each space. To the right, the show-stopping 16'2" × 16' open-plan kitchen, living and dining area unfolds. It is a superbly proportioned room that anchors the home’s contemporary feel. The kitchen runs along the near wall with ample cabinetry, grey quartz worktops and fully integrated appliances discreetly concealed within, including a full-height fridge freezer, washing machine and dishwasher. Expansive sash windows draw in natural light, enhancing the soft, neutral tones of the interior. There is generous space for both a large dining arrangement and a comfortable lounge area, ideal for entertaining or unwinding.
The principal bedroom offers a calm retreat, beautifully balanced in proportion and, like the main living space, framed by twin sash windows that flood the room with daylight. The second bedroom, measuring 12'3", is equally versatile, currently arranged as a stylish home office and nursery. A beautifully appointed family bathroom completes the accommodation, finished with quality tiling, a full-sized bathtub and polished chrome fittings, all contributing to the apartment’s cohesive and elevated aesthetic.







