This beautifully presented two bedroom Victorian terrace on Pinner Road blends modern living with understated period charm. Thoughtfully maintained, the home carries a refined minimalist aesthetic that feels warm, calm and quietly characterful. Its façade is full of gentle appeal, with neutrally painted brick, a graceful ground floor bay, a matching first floor sash window with shutters and a simple, low-maintenance front garden. Bushey Station is only a short stroll away, with direct routes to London Euston in around 17 minutes.
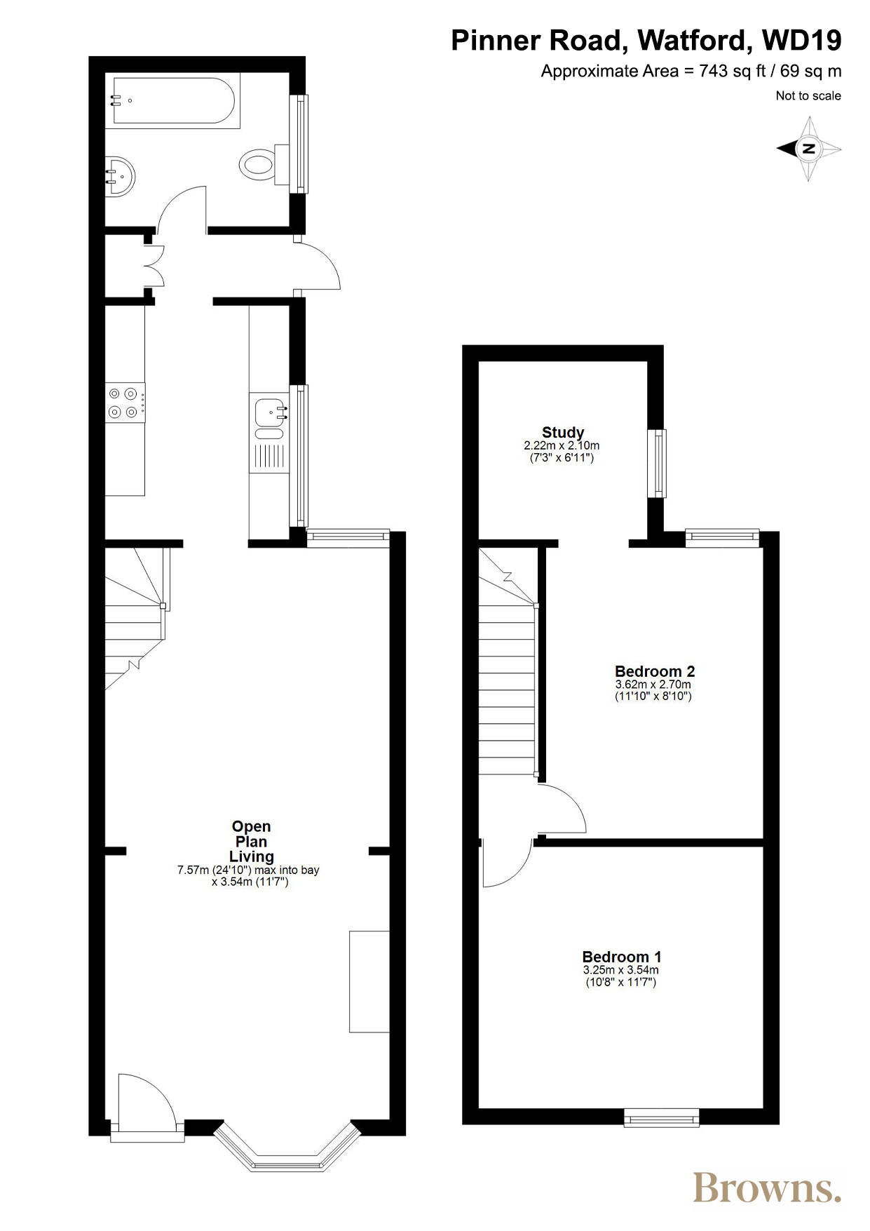
Through the anthracite front door, the ground floor opens into an impressive living and dining space measuring 24’10” x 11’7”. Original floorboards have been renewed, adding both heritage and softness underfoot. A rare architectural feature defines the room: an elegant arched opening between the living and dining areas, creating a gentle flow you don’t often find in Victorian homes. The fireplace forms the natural focal point, flanked by bespoke alcove cabinetry where curated books and objects bring texture and colour in that quietly styled, editorial way. The galley kitchen sits at the rear, fitted with a full run of cabinetry and well-arranged appliances for everyday ease. Beyond this lies the ground floor family bathroom, finished in a deep navy with white tile slips, complete with a freestanding tub and separate enclosed shower - a calm, contemporary retreat.
Upstairs, the first floor offers two bedrooms. The main room is bright and generous, framed by a west-facing sash window that fills the space with afternoon light and provides ample room for freestanding furniture. The second bedroom leads to an unexpected and rare addition: a separate study. Currently used as a dressing area and drum room, it’s an ideal flexible space for home working or creative pursuits.
To the rear, the easterly facing garden feels almost courtyard-like in its simplicity, extending neatly from the house and offering a peaceful outdoor space to unwind.








